Research Laboratory Centre
This project focuses on translating a conceptual research laboratory design into a technically resolved, buildable architecture. The process moves from spatial intent to detailed execution developing plans, sections, and systems that align function, structure, and services. Emphasis is placed on precision, coordination, and material logic to ensure the design performs in reality. The outcome is a coherent set of working drawings that bridge design thinking with construction feasibility.
Year
January 2024
Scope
Working Drawing
Location
Ahmedabad, Gujarat, India
Duration
4 months
Challenge
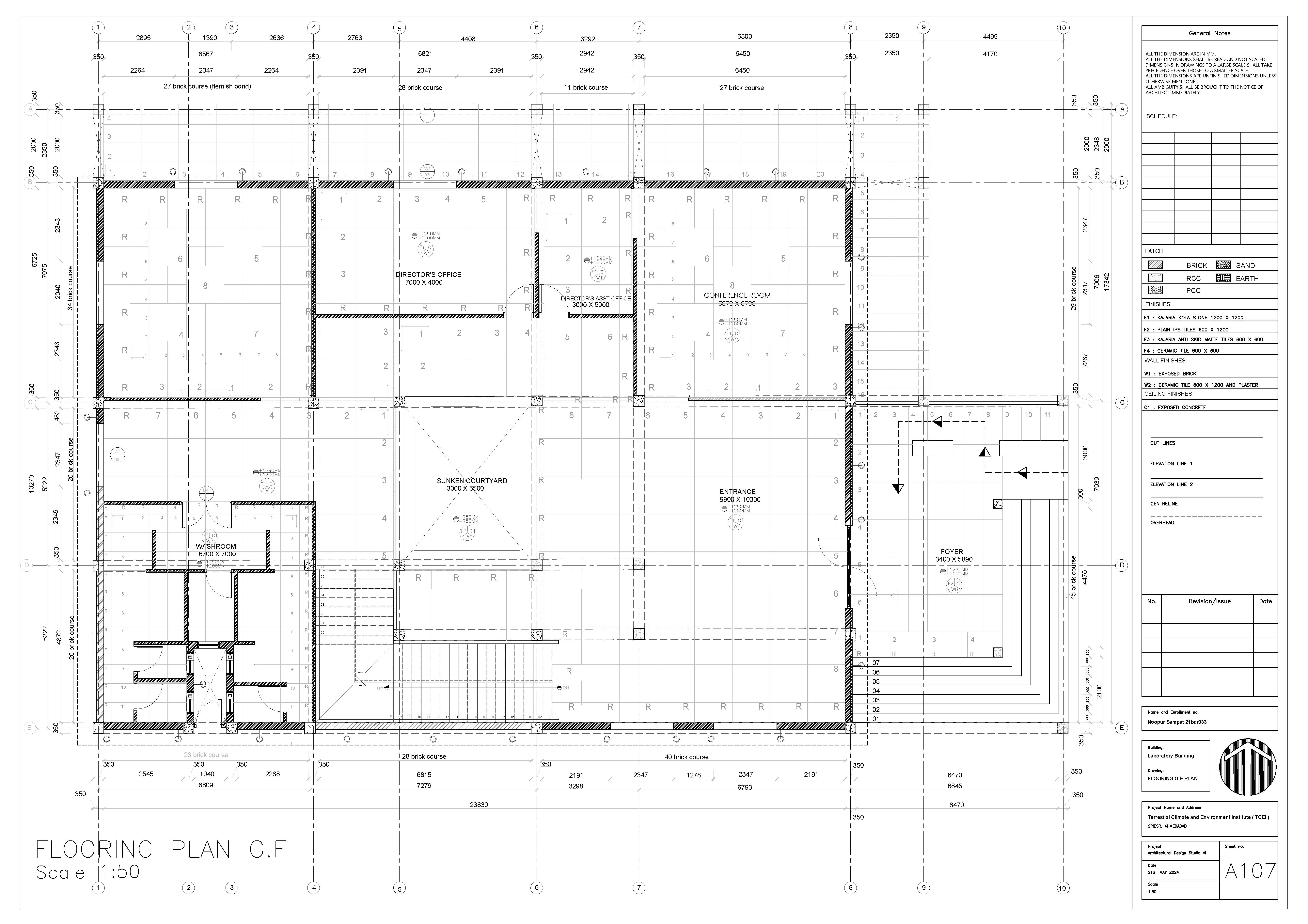
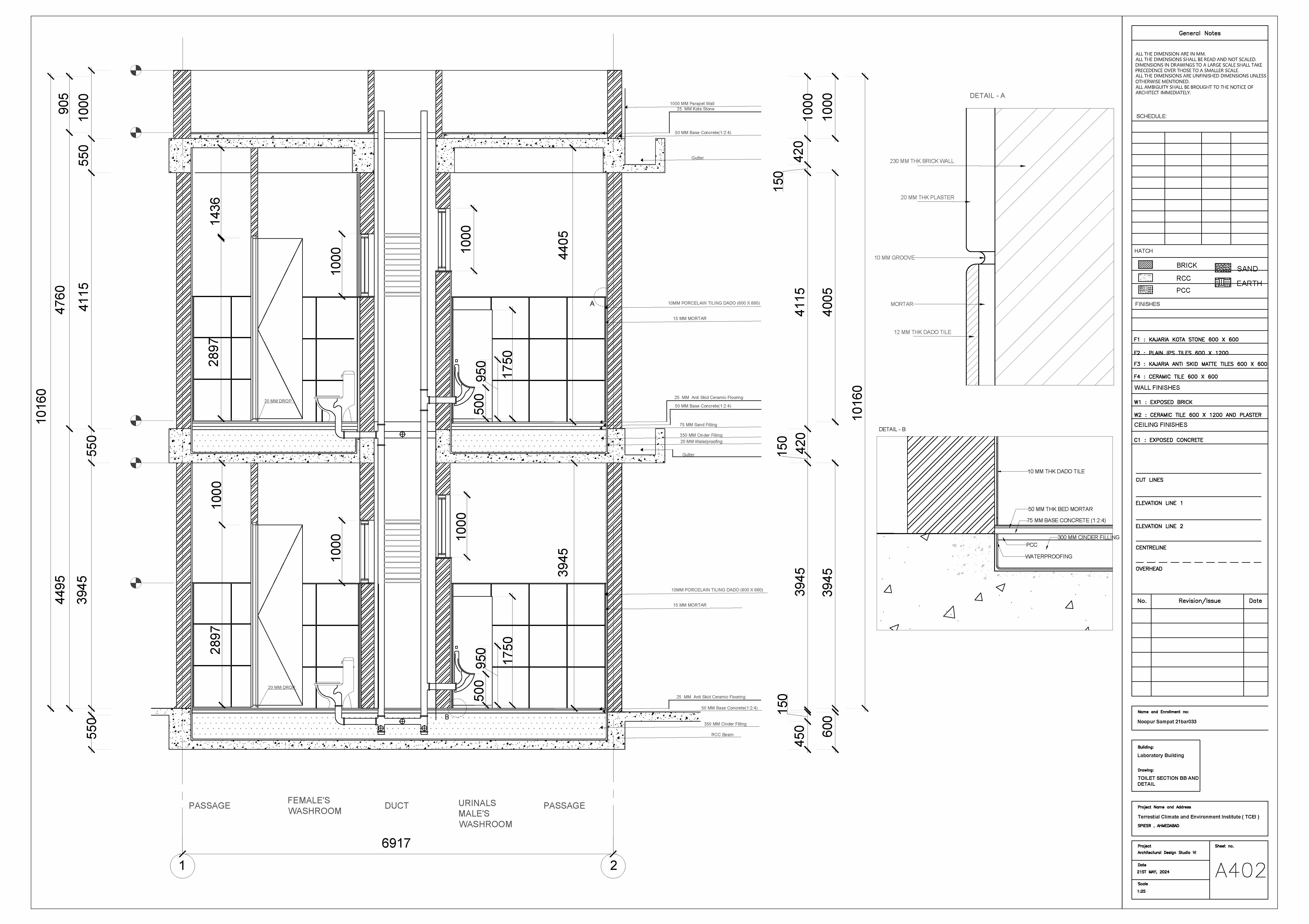
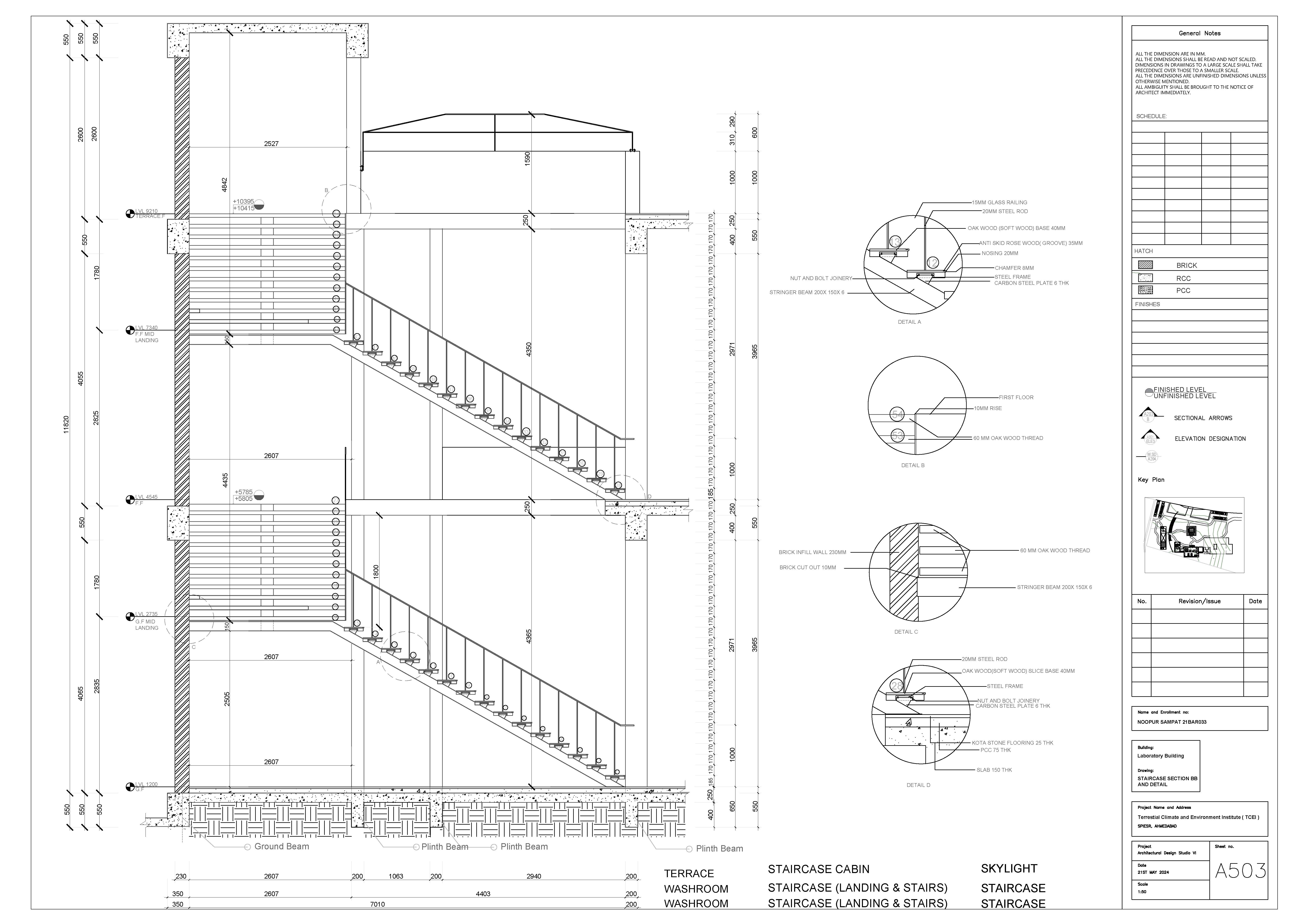
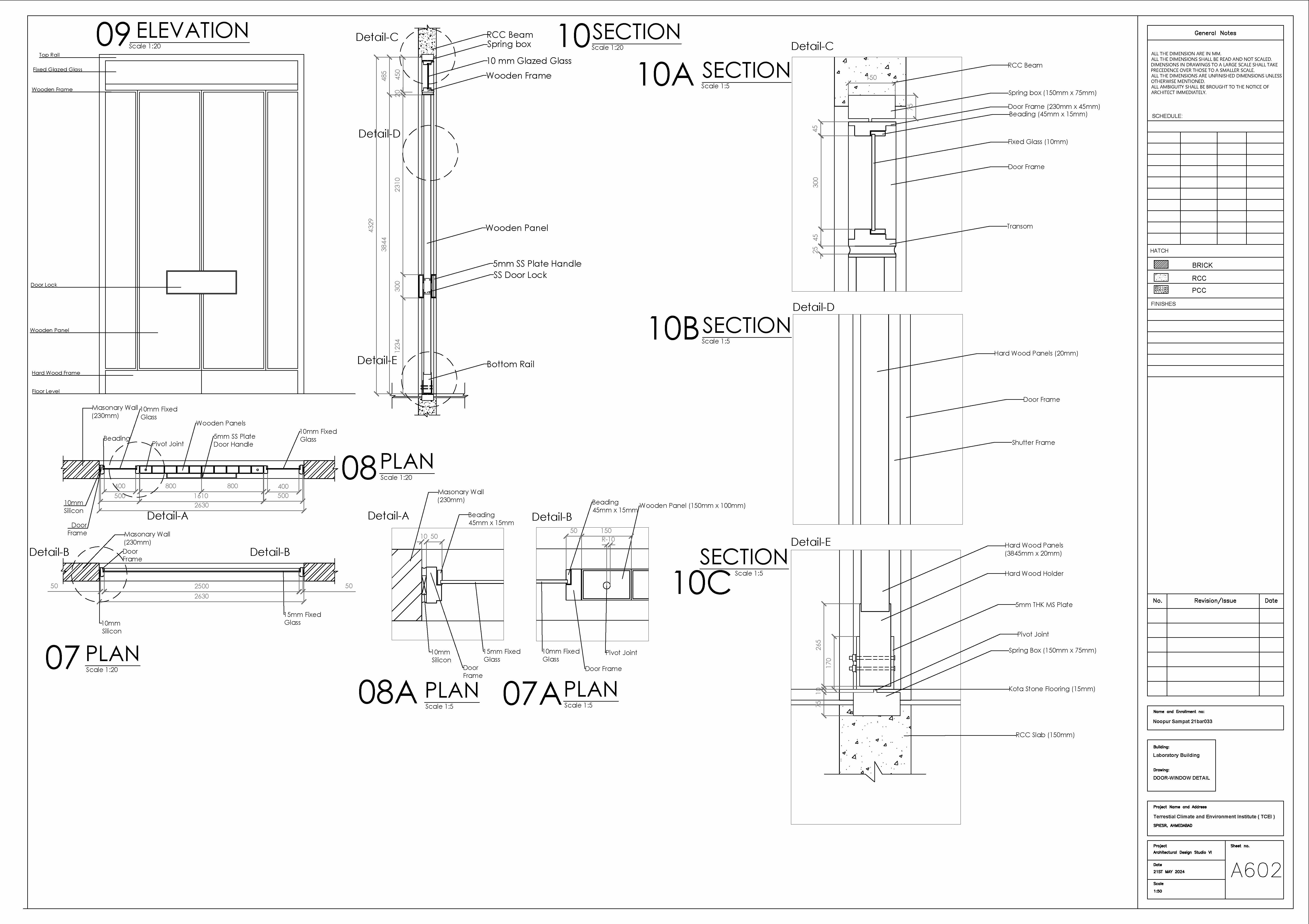
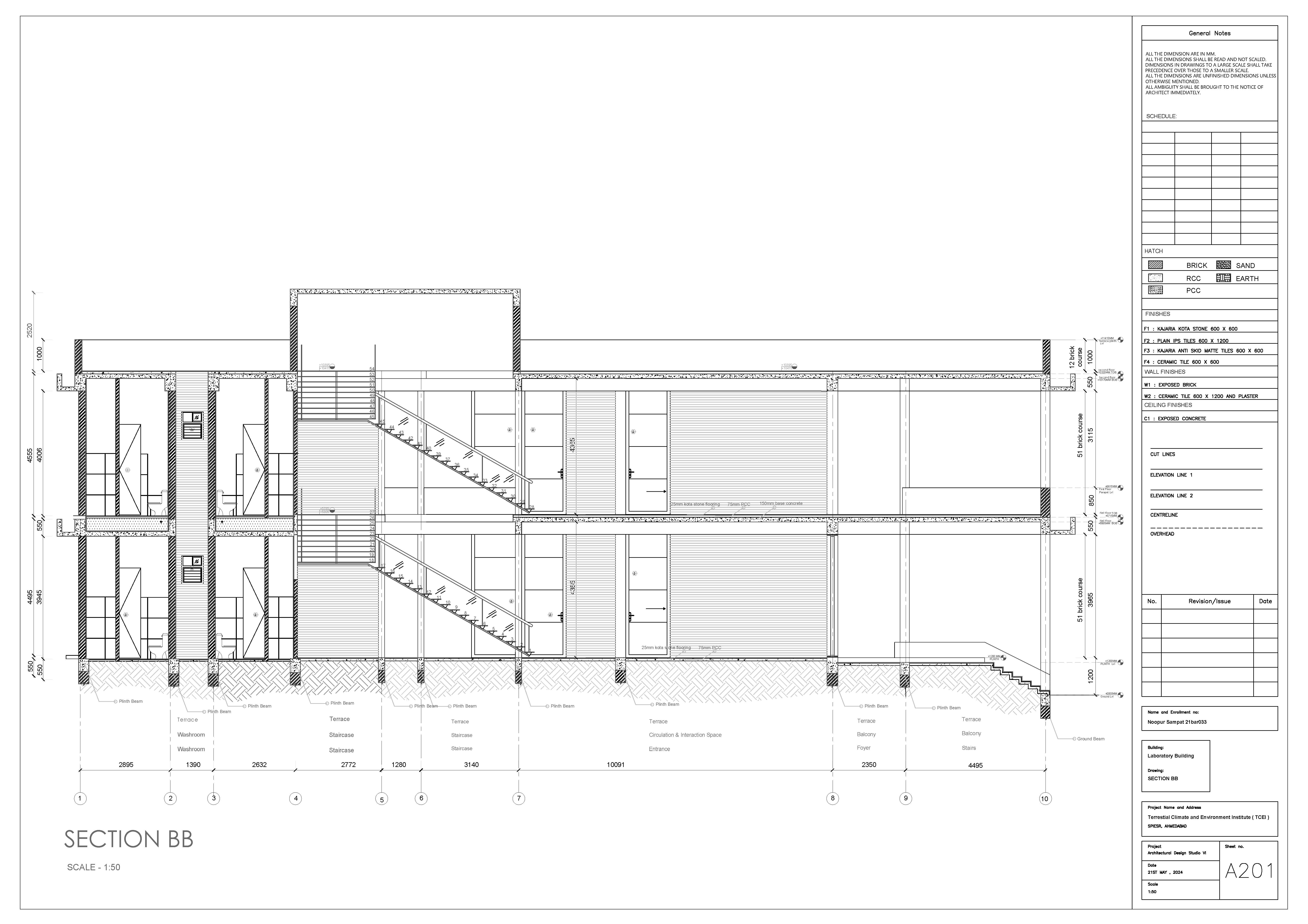
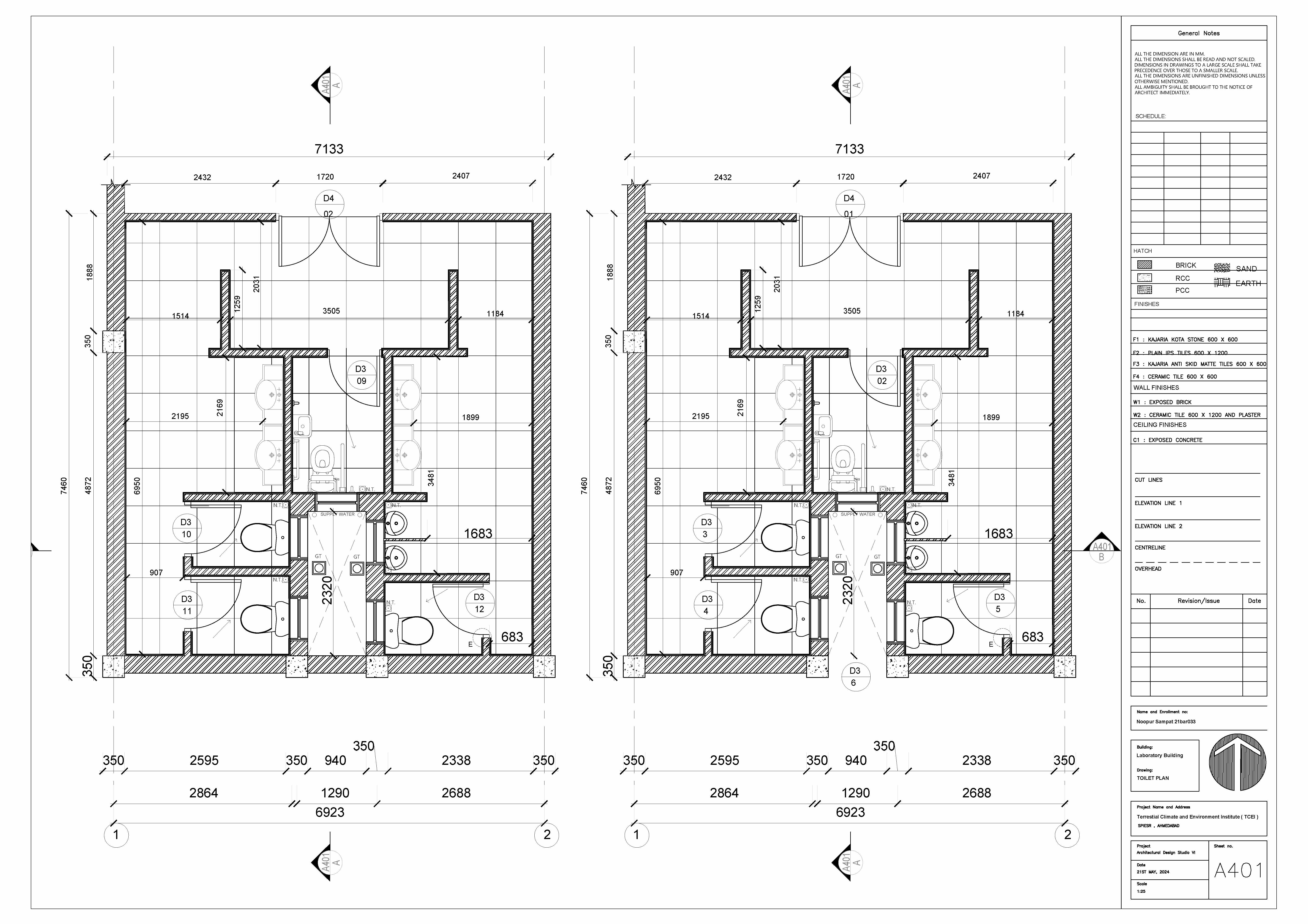
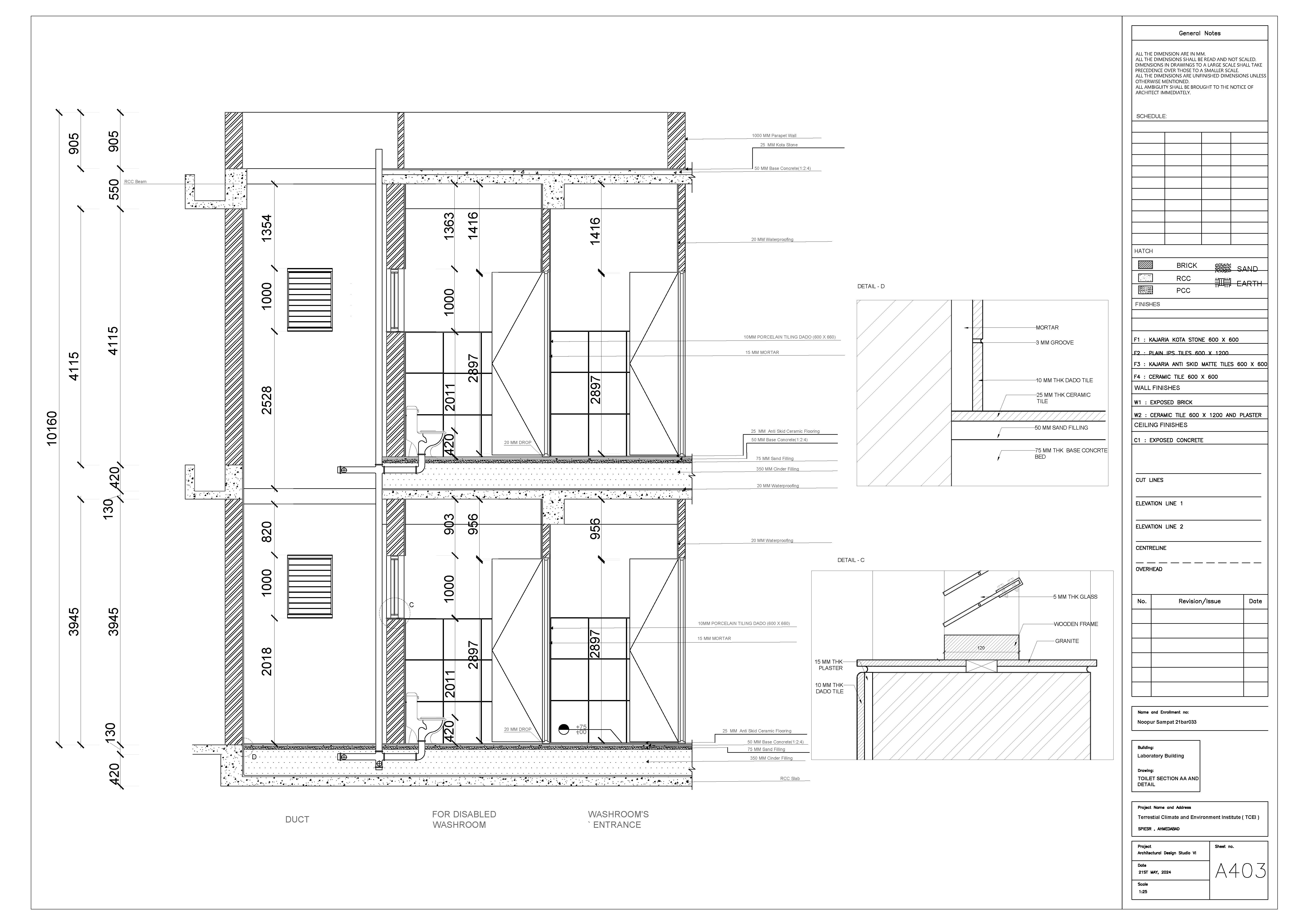
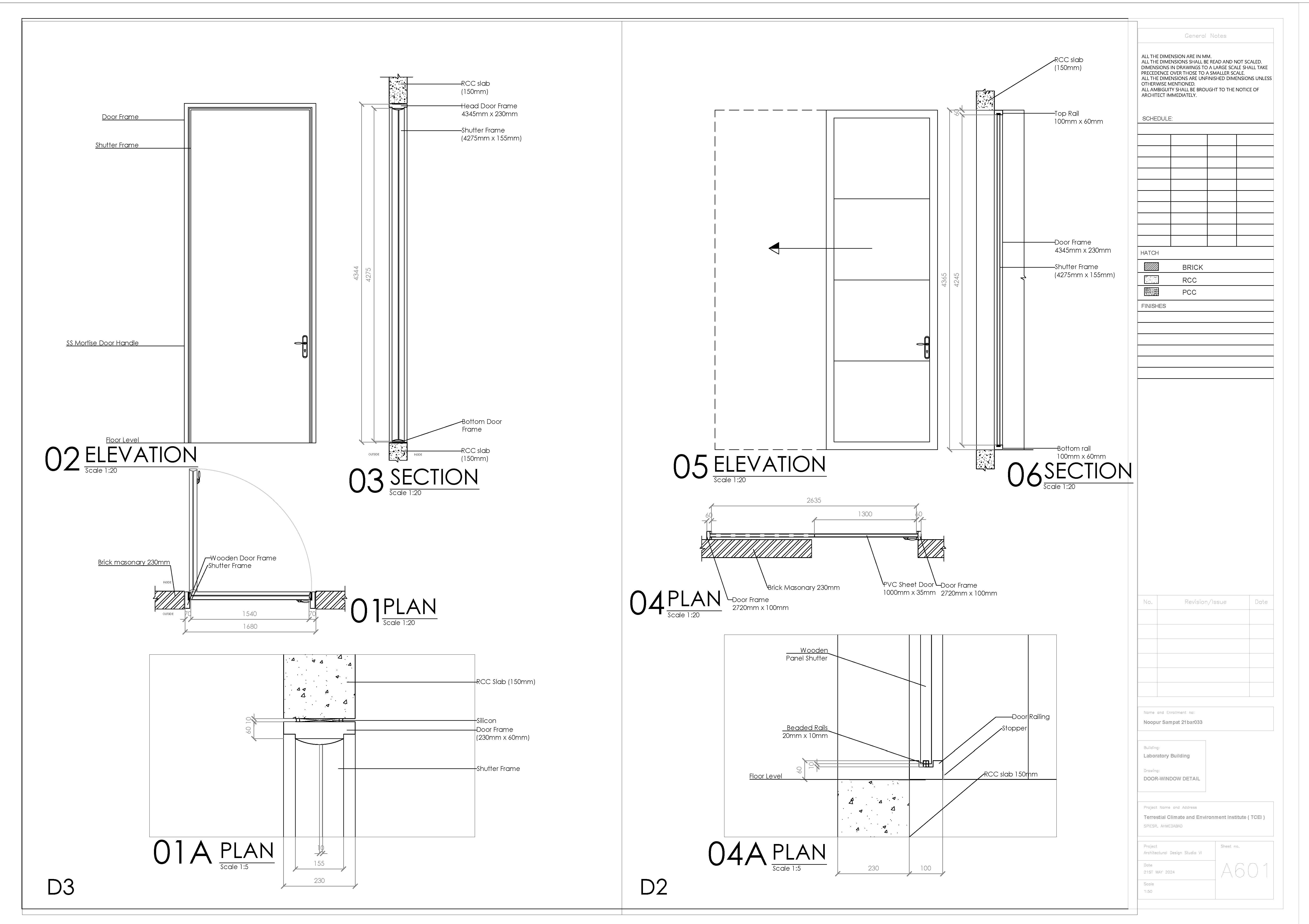
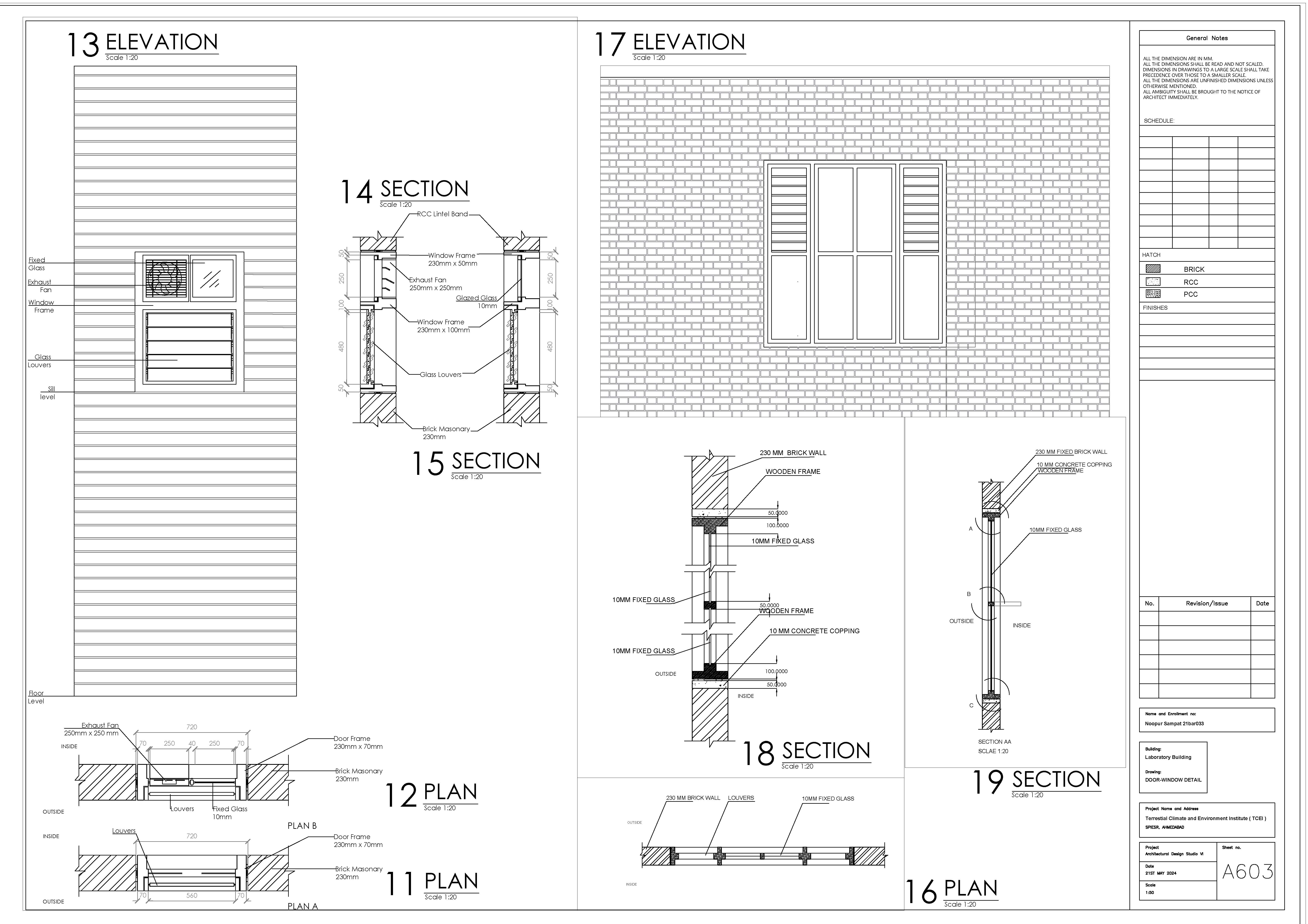
The primary challenge lay in understanding and resolving the technical depth required to make the design workable. This included detailing critical components such as washrooms, terraces, plinth conditions, joinery, staircases, flooring, and door-window schedules. Simultaneously, material exploration and integration of building services (plumbing, electrical, drainage) required constant coordination. The process demanded learning, iteration, and problem-solving at every scale from detail junctions to overall system integration.
Solution
The design was developed through iterative detailing, where each component was resolved in relation to structure, material, and services. Standard details were studied, adapted, and integrated into the project to ensure clarity and constructability. Drawings were refined through layers plans, sections, and enlarged details ensuring coordination between all building systems. This approach transformed the project into a technically grounded and execution-ready architectural proposal.











